
Detaile Ardo Hiiuväina, Linda Zuppingu, Semele Kari, Mirell Ülle jt tudengite töödest ja ettevalmistusprotsessist
Details of the work and preparation process of students Ardo Hiiuväina, Linda Zuppingu, Semele Kari, Mirell Ülle and others
Supervisors: Tüüne-Kristin Vaikla, Alina Nurmist, Silver Sternfeldt, Mari Põld, Kadi Karman
Sleep matters – in order to be able to study, work, and communicate, a person must be able to sleep properly, and quality sleep is especially important for children. Interrupted nighttime sleep affects a child’s daytime well-being, behavior, academic performance, social coping, and family relationships. Sleep disorders occur in children from infancy, and they can be both medical and non-medical. If a child has a sleep problem, it often means that the entire family’s sleep is disturbed.
Tüüne-Kristin Vaikla: “Dreams are part of our uncontrollable selves, and sleep debt is a familiar topic to students from their university days, which inhibits creativity and inspiration. By studying sleep architecture through personal experience, one can discover the interaction and interaction between people and space, where practical solutions are supplemented by theoretical stratification. With the children’s sleep study project, we sought broader knowledge – how a space could support the sleep of a restless sleeper.”
Children’s sleep disorders are studied at Tallinn Children’s Hospital, but the rooms where sleep studies are conducted are outdated and no longer meet the needs of children, their caregivers, or hospital staff. At the invitation of the Children’s Hospital and the Hospital Support Foundation, master’s students in interior architecture had an excellent opportunity to take sleep architecture apart, conceptualize a space that supports sleep studies, and propose solutions on how to create a new sleep study so that help can be provided as smoothly as possible.
The doctors involved in sleep research at the Children’s Hospital and the support fund team provided in-depth feedback on the students’ ideas in several stages. In order to better capture the patient experience, one of the students spent a night in the hospital to understand what parts sleep research consists of and what emotions purposeful sleeping in the hospital evokes.
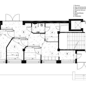
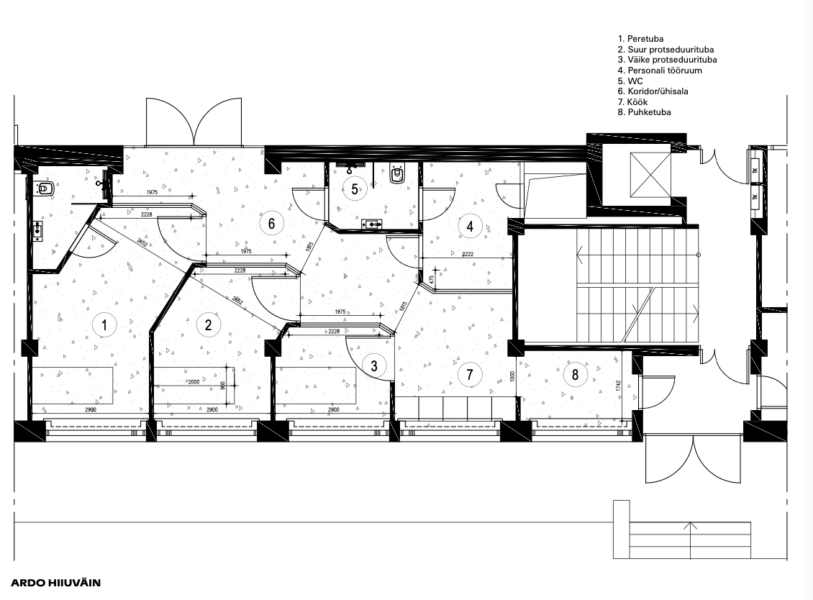
Among the student projects, the partners selected Ardo Hiiuväina’s project for implementation.
The sleep center, designed with the participation of the students, will open in 2022.
We thank the partners for their trust!











